400-800-8190
15800726618
| 电热加湿器 | |||
|
|
JDR | ||
|
|
3-120kg/h | ||
|
|
2.5-96KW | ||
|
|
≤无需喷头 | ||
|
|
湿度自动控制比列调节 | ||
|
|
3KG | ||
|
|
400×290×580(长×宽×高) | ||
- 产品详细
- 相关配件
- 质量保证
- 典型客户
金 嘉 乐 电 热 加 湿 器
一、电热加湿器主机外形示意图和电热加湿器电控箱外形图


二、电热加湿器工作原理与特点
- 工作原理:电热式加湿器是依据电阻加热的原理,电加热管浸没在水中,电热管通电后,依据焦耳定律,电加热管产生热量,从而使水变成了蒸汽。使用时接通电源、水源及排水管,加湿器即开始进水,箱体内水位达到工作水位时,电热管开始加热;水位低于工作水位时能切断控制线路,从而使电热管停止加热;水位超高时由溢水口溢出。工作过程中产生的蒸汽由排汽孔排出。电热式加湿是通过控制加热元件的加热功率,来控制蒸汽输出量的多少。
- 结构合理:设计独特、性能稳定、安全可靠,不锈钢材料制作,美观轻巧,安装、使用方便。
- 热效率高:加热管排列合理,发热均匀;能快速加热产生蒸汽,满足需要。
- 安全可靠:不锈钢低液位防护装置,水位过低时,能切断控制线路,避免加热管干烧引发事故。
- 性能优良:高品质的电加热管使产品电气性能远远优于国家标准,产品性能优良,使用寿命长久。
- 洁净高效:高温蒸汽无菌无藻,吸收效率高,加湿速度快,等温加湿。
三、电热加湿器的型号编制说明

四、电热加湿器的技术性能规格表
型号 JDR |
A(B)-3-C(J) |
A(B)-5-C(J) |
A(B)-9-C(J) |
A(B)-16-C(J) |
A(B)-20-C(J) |
A(B)-30-C(J) |
A(B)-40-C(J) |
A(B)-60-C(J) |
A(B)-80-C(J) |
A(B)-120-C(J) |
加湿量(Kg/h) |
3 |
5 |
9 |
16 |
20 |
30 |
40 |
60 |
80 |
120 |
电流 (A) |
11.4 |
13.6 |
11.4 |
18.2 |
25 |
32.7 |
46.4 |
65.4 |
92.7 |
139 |
功率 (kw) |
2.5 |
3 |
7.5 |
12 |
16.5 |
22.8 |
30.6 |
45.6 |
61.2 |
96 |
电压类型 |
220V / 50Hz |
380V / 50Hz |
||||||||
五、 电热加湿器控制系统
- A 型控制模式: ON / OFF 即加湿器接收 0N / 0FF 控制信号。
- B 型控制模式:比例调节,即加湿器接收 0 — 5V 、 0 — 1 0V 、 4-20mA 等调节信号连续调整加湿器的加湿量。 B 型标准配置西门子液晶控制器 RWD68+ 西门子温湿度传感器。
六、电热加湿器的使用条件
- 环境温湿度: 电热加湿器控制箱周围温度 0 -40 ℃ ,湿度<80 % RH
- 进水水质: 洁净的自来水、软化水、去离子水等各种水质。最好用纯水 (R0 水 )
- 水质硬度: <30 德国度
- 进水压力: 0 . 1 — 0 . 3MPa
- 绝缘强度: 2KV
- 绝缘电阻: 大于 5M Ω
- 风道压力: 小于或等于 100mmH 2 0( 限 JDR-J 系列 )
七、电热加湿器主机的外形尺寸
1、C 型敞开式主机示意图及外形尺寸
型号 JDR-3A(B) -C JDR-5A-(B) -C JDR-9A(B) -C JDR-6A(B)- C JDR-20A (B) -C JDR-30A (B)-C JDR-40A (B)-C JDR-60A (B)-C JDR-80A-(B)-C JDR-120A(B)-C A(mm) 400 400 460 600 600 600 600 600 600 71O B(mm) 230 230 260 270 385 485 575 435 575 580 C(mm) 290 320 350 350 400 450 500 650 650 750 
2、 J 型接管式主机示意图及外形尺寸

型号
|
JDR-3A (B)- J |
JDR-5A (B)-J |
JDR-9A (B)- J |
JDR-16A (B)-J |
JDR-20A (B)-J |
JDR-30A (B)-J |
JDR-40A (B)-J |
JDR-60A (B)-J |
JDR-80A (B)-J |
JDR-120A (B) - J |
JDR-200A (B) -J |
A(mm) |
400 |
400 |
460 |
560 |
560 |
560 |
580 |
580 |
580 |
710 |
790 |
B(mm) |
230 |
230 |
260 |
270 |
385 |
435 |
575 |
435 |
575 |
580 |
590 |
C(mm) |
440 |
470 |
500 |
500 |
550 |
600 |
650 |
800 |
800 |
1 000 |
1105 |
3、室内蒸汽分配器

4、电热加湿器 B 型比例调节电控箱外形尺寸

![]() |
室内蒸汽分布器功能:
将电热加湿器产生的蒸汽直接在室内喷射,蒸汽被室内空气均匀吸收。
|
|
将电热加湿器产生的大量蒸汽在空调机组内大面积均匀分布,蒸汽被气流快速吸收、吸收距离短。 |
九、电热加湿器的安装说明

注意:J 型电热加湿器安装时,加湿器主机和电控箱都安装在空调箱外面,蒸汽分配管插入或安装到空调箱加湿段。
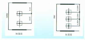
蒸汽分配管在风管中安装的位置
1、在水平风管和卧式空调箱加湿段中的安装 如下图:

2、在垂直风管和立式空调箱加湿段中的安装 如下图:

十、电热加湿器配置说明
- 保温
- 蒸汽快速分布器
- 预热功能
十一、使用维护及注意事项
- 工作电压:不大于额定值的 1.1 倍,外壳应有效接地。
- 工作介质:不易结垢无腐蚀无杂质的自来水或纯水。
- 加湿器安装时应保持水平,不可倾斜,外接水管时应注意进水阀口方向不可转动。
- 工作过程中排汽孔不可遮盖,以免影响蒸汽的排出。
- 不可随意调节、拆下浮球阀及控制开关,以免损坏。
- 应经常检查控制箱内行程开关顶杆是否有杂物或水锈并保证顶杆能自由滑动。
- 应经常检查和清理、电热管外表及箱内水垢,同时确保水箱及控制箱连通管畅通无阻,清洗时打开箱体盖板即可。
- 检查、清洗时必须关闭电源。
- 长期不使用时应关闭电源及水源,并放尽箱体内余水。
留言
欢迎您提出宝贵的意见和建议,您提交的任何信息,都将由我们专人负责处理。如果不能解决您的疑问,请您联系我们。














